Подъёмник четырехстоечный 4 тонны с траверсой (под сход-развал) TLT-440W Launch купить в Краснодаре цена ✅ - Все для СТО

Время работы:

ПН-ПТ 10:00 - 18:00

Суббота, 
Воскресенье - Выходной

8 (800) 550-41-17

8 (812) 962-41-17

info@vsedlyasto.ru

Заказать звонок
Каталог товаров

Подъёмник четырехстоечный 4 тонны с траверсой (под сход-развал) TLT-440W Launch

Артикул: GL01937
(4)
TLT-440W гидравлический (4-х стоечный) подъемник грузоподъемностью 4т. с возможностью использования дополнительного подъемной платформы с грузоподъемностью 2,0 т.
Подарок к покупке
Привезем бесплатно
Привезем бесплатно
498 370 руб. за 1
В наличии много
- +
Нашли дешевле?
Основные характеристики
Производитель

Комплектация

  • Подъемник с гладкими трапами, 1 шт.
  • Комплект задних сдвижных платформ, 1 шт (две платформы)
  • Комплект передних заездных платформ, 1 шт (две платформы)
  • Въездные трапы, 2 шт.
  • Гидропневматическая траверса (2 тонны), 1 шт.

Launch TLT-440W (с пневмотраверсой)  - гидравлический 4-х стоечный подъемник для регулировки развала-схождения. Грузоподъемность 4 тонны, имеет предустановленную траверсу 2,0 т с пневматическим управлением. Управление стопорами — пневматическое. Подходит для всех датчиковых стендов и стендов 3D.

Оперативно может быть адаптирован под слесарные работы — быстрым снятием платформ со сдвижными пластинами и платформ для заезда на поворотные круги (демонтаж занимает около двух минут).

Подъемник соответствует международным требованиям и стандартам по безопасности.

Преимущества:

  • Дизайн разработан на основе международных стандартов, идеально подходит для использования в профессиональных автомастерских как для работы со стендами сход-развал (в том числе для стендов 3D), так и для слесарных работ.
  • Пневматическое управление стопорами и траверсой значительно ускоряют и упрощают работу на подъемнике.
  • Удобная готовая комплектация подъемника: траверса грузоподъемностью 2,0 т и задние сдвижные платформы для проведения измерения геометрии и развал-схождения — входят в комплект.
  • Места установки кругов оборудованы гладкими горизонтальными площадками, позволяющими производить компенсацию прокаткой при работе со стендами регулировки развала-схождения.
  • Изменяемое расстояние колеи.
  • Быстрое переоборудование подъемника из развального в слесарный и обратно позволяет сделать пост универсальным без увеличения износа задних сдвижных платформ.
  • Защита от повреждения кабеля при подъеме, защитная блокировка в рабочей позиции, защита от перегрузки по весу, защита от повреждения электропроводки.

Грузоподъемность, кг:
4000
Гарантия
12 месяцев
Назначение:
Для легковых, Ддя микроавтобусов, Для внедорожников, Для гаража, Для коммерческих, Для кроссоверов, Для шиномонтажа
Применение подъемника
Для слесарных работ, Для сход развала, Универсальный
Исполнение:
Четырехстоечный
Вид установки:
Стационарный
Тип подъемника:
Электро-гидравлический
Траверса:
В комплекте
Управление стопорами:
Пневматическое
Общая высота, мм:
2172
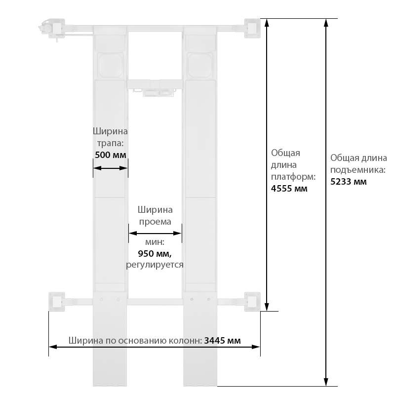
Общая ширина, мм:
3445
Общая длина, мм:
5455
Длина платформы, мм:
4555
Ширина трапов, мм:
500
Высота подхвата, мм:
170
Расстояние между трапами, мм:
950
Высота подъема, мм:
1850
Мощность, кВт:
2,2
Цвет:
Красный, Серый
Вес нетто/брутто,кг:
1550
Второй уровень:
Нет
Производитель
Производство
Китай
Напряжение, вольт/фаза:
380, 220

Рассчитать стоимость доставки

Условия доставки:

Санкт-Петербург:
  • От 700 руб (Высота, ширина товара до 0,8 м., длина до 2м. И вес товара не более 100 кг.)
  • От 1800 руб ( Длина товара не превышает 3,5 метров и вес не более 1000 кг)
  • Лен область: +35 руб. км от КАД.
  • Товар размерами свыше 3,5 метров и более 1000 кг. уточняйте у менеджера.
  • Самовывоз товара осуществляется по предварительному согласованию со складов компании.
Москва и Московская область.
  • От 2500 руб ( Длина товара не превышает 3,5 метров и вес не более 1000 кг.)
  • Товар размерами свыше 3,5 метров и более 1000 кг. Уточняйте у менеджеров.
  • Самовывоз товара осуществляется по предварительному согласованию со складов компании.
По городам РФ:
  • Производится транспортными компаниями на ваш выбор, согласно тарифам ТК.
  • Доставка до терминала ТК уточняйте у менеджера.
  • Вы можете рассчитать ориентировочную стоимость доставки до вашего города в окне расчёта доставке или на сайте ТК.

В блоке справа Вы можете ввести необходимые данные и узнать стоимость и сроки доставки.

Похожие товары
Артикул: EE-6435V2S.52L.50T.M
720 620 руб. за 1
В наличии много
- +
Артикул: WDK-545
534 710 руб. за 1
В наличии мало
- +
Артикул: A465A (PEAK 414A)
584 080 руб. за 1
В наличии много
- +
Артикул: F4D-4
Немецкий гидравлический насос- "Bucher Hydraulics". Для сход-развала ВСЕХ авто от Матиза до длинной Газели и ВСЕХ внедорожников. Для всех типов стендов сход-развал в т.ч 3D и 3D с прокаткой, между колоннами 2910мм.
354 900 руб. за 1
В наличии много
- +

Напишите нам!